top of page
SEATON CREEK
Situated a mere three miles from Jacksonville International Airport, Seaton Creek enjoys proximity to a bustling shopping district and is just a stone's throw away from Jacksonville Zoo and Gardens. Boasting excellent beaches, golf courses, top-notch restaurants, and a plethora of prime attractions, the city offers a wealth of adventures waiting to be explored.
*Available properties subject to change
MODELS AT SEATON CREEK - 50s
The 50s Collection is the largest selection of new single-family homes at the Seaton Creek masterplan community in Jacksonville, FL. Residents can enjoy an onsite swimming pool for summer fun and convenient access to Jacksonville International Airport and nearby shopping. With championship golf courses, beautiful beaches, and attractions like Friendship Fountain and Jacksonville Zoo and Gardens, there's something for everyone in Jacksonville.
HALLE
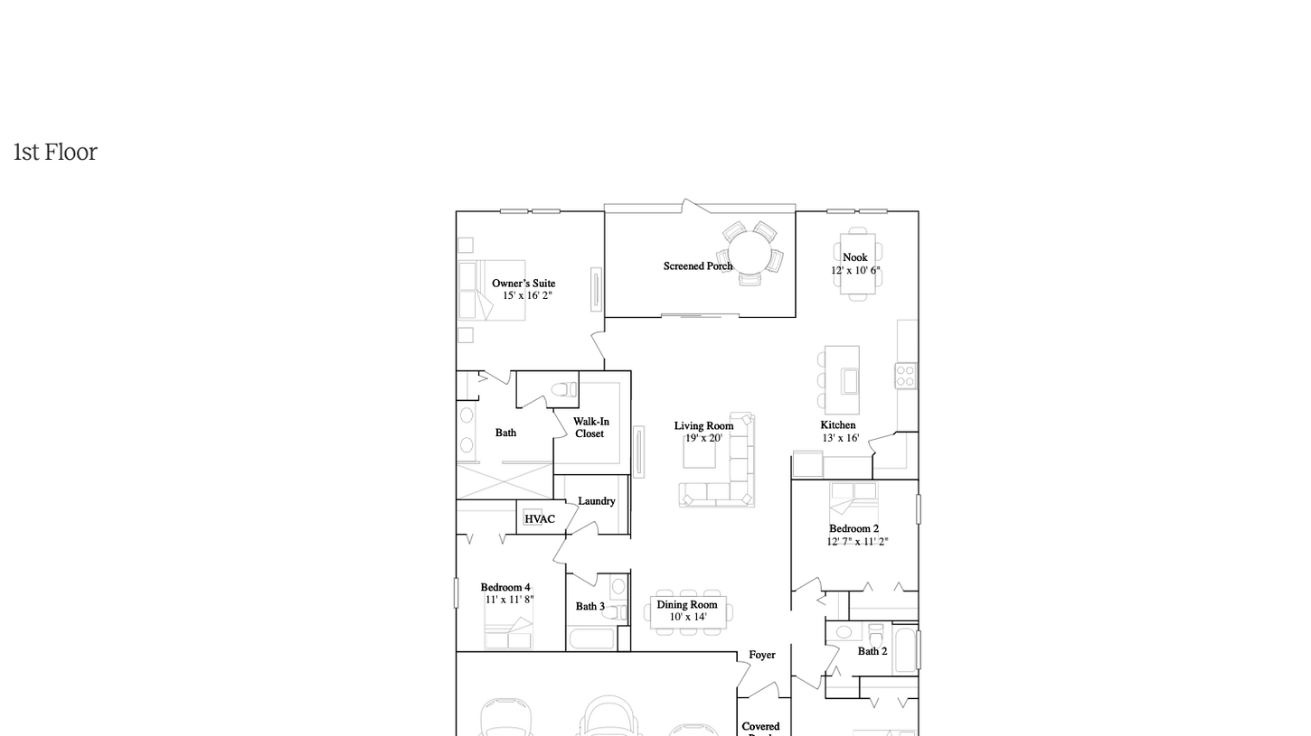
HALLE II
TREVI
TREVI II
CHARLE
CHARLE II
BRIO
BRIO II
MODELS AT SEATON CREEK - 60s
Introducing the 60s Collection, featuring new single-family homes within the upcoming Seaton Creek masterplan community in Jacksonville, FL. Homeowners can relish an onsite swimming pool for summer enjoyment. Conveniently situated near Jacksonville International Airport and a neighboring shopping area boasting premier retailers, boutiques, and dining options, this community offers ease of access. With championship golf courses, picturesque beaches, and attractions like Friendship Fountain and Jacksonville Zoo and Gardens, Jacksonville offers a diverse array of experiences for all.
TIVOLI
TIVOLI II
PRINCETON
PRINCETON II
SERENATA
MEDALLION
MEDALLION II
AMENITIES
Seaton Creek
Innovative single family and active adult homes with inspired amenities.
bottom of page













































